令和07年9月29日 11時14分 更新
次回更新予定日:令和07年9月30日
売一戸建・羽生駅物件情報
・・・本日入荷およびデータ更新
・・・入荷後1週間以内
・・・間取あり
・・・写真あり
居住用物件一覧へ
トップページへ
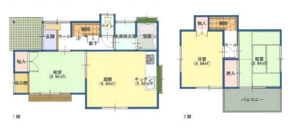
間取一覧
写真一覧
物件番号
写真画像
所在地
物件名
価格
バス
徒歩
土地面積
建物面積
間取
構造
築年月
引渡時期
詳細
画像
Bk6495
埼玉県羽生市大字藤井下組
中古戸建 羽生市藤井下組
450万円
−
41分
117.69m
2
68.31m
2
3LDK
木造
S58/11
相談
閑静な住宅街!南向きで日当たり良好!リフォーム済み物件!〜リフォーム〜平成21年12月トイレ、キッチン、ダイニング壁・床交換、平成19年洗面台・風呂交換